e-Volutions Designs
A CREATIVE SPATIAL MoVeMENT
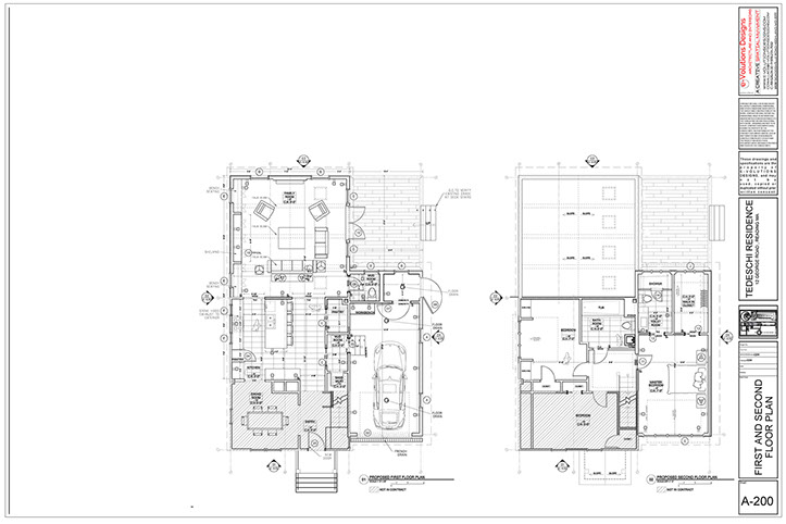
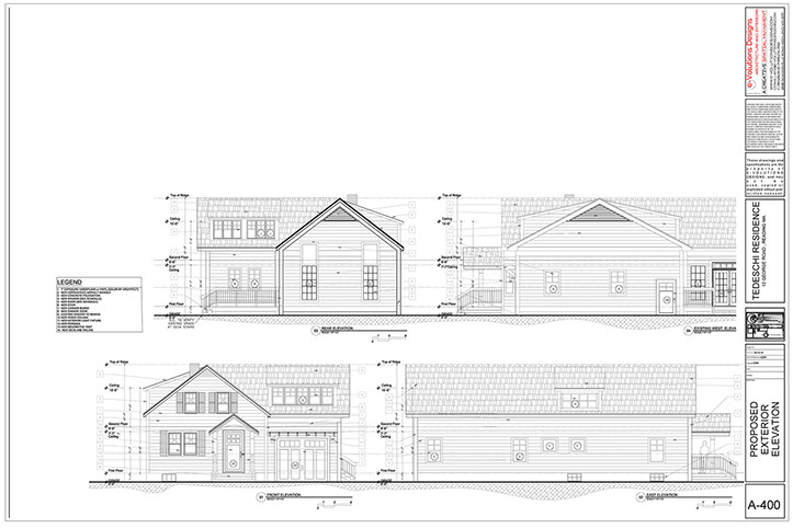
TEDESCHI RESIDENCE: READING, MA
Addition of 2000 +/- sf to an existing single family home.
--
BACK TO PROJECTS